Listed by Karen Rivard of EXP Realty (Cell: 603-867-5883)

Listing Sold by Jason Mitchell Group
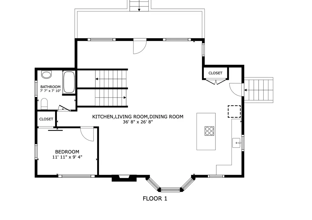
Welcome to this charming home-one of only two on Shackford Court-perfectly situated at the end of a quiet street. With 1.57 acres of land, this property offers room to live, play, entertain, and unwind. Enjoy peaceful mornings on the porch with your coffee or put your green thumb to use in the yard-there's space for it all. Inside, you'll find a thoughtful layout and abundant storage, from generous closets to a large pantry cabinet with pull-out shelves. Outside, the detached two-car garage offers even more convenience, complete with additional storage space above. This home is heated and cooled with efficient geothermal technology-an economical and environmentally friendly system-plus a propane backup for added comfort and peace of mind. Conveniently located approximately one hour from Manchester, the Seacoast, and the mountains, this is your chance to enjoy privacy and space while still being close to everything New Hampshire has to offer. Come see this property for yourself-homes like this don't stay available for long!

Listing Tools (detailViewNewGen)

Property Details of 9 Shackford Court

Property Details

Interior Features

Exterior Features

Utilities and Appliances

Community

Other Details

Map Location

Broker Reciprocity 

Copyright 2025 PrimeMLS, Inc. All rights reserved. This information is deemed reliable, but not guaranteed. The data relating to real estate displayed on this display comes in part from the IDX Program of PrimeMLS. The information being provided is for consumers’ personal, non-commercial use and may not be used for any purpose other than to identify prospective properties consumers may be interested in purchasing. Data last updated December 11, 2025 8:23 PM EST

 

Hi there! How can we help you?

Contact us using the form below or give us a call.

Send Us A Message:

I agree to receive marketing and customer service calls and text messages from Ruffner Real Estate. To opt out, you can reply 'stop' at any time or click the unsubscribe link in the emails. Consent is not a condition of purchase. Msg/data rates may apply. Msg frequency varies. Privacy Policy.

Do not fill in this field:

This site is protected by reCAPTCHA and the Google Privacy Policy and Terms of Service apply.

Hi there! How can we help you?

Contact us using the form below or give us a call.

Send Us A Message:

Do not fill in this field:

This site is protected by reCAPTCHA and the Google Privacy Policy and Terms of Service apply.

Hi there! How can we help you?

Contact us using the form below or give us a call.

Send Us A Message:

Do not fill in this field:

This site is protected by reCAPTCHA and the Google Privacy Policy and Terms of Service apply.

Do not fill in this field:

This site is protected by reCAPTCHA and the Google Privacy Policy and Terms of Service apply.

Do not fill in this field:

This site is protected by reCAPTCHA and the Google Privacy Policy and Terms of Service apply.

Do not fill in this field:

This site is protected by reCAPTCHA and the Google Privacy Policy and Terms of Service apply.

$

Do not fill in this field:

This site is protected by reCAPTCHA and the Google Privacy Policy and Terms of Service apply.