Listed by Andrew Bosco of EXP Realty (Phone: 603-833-0951)
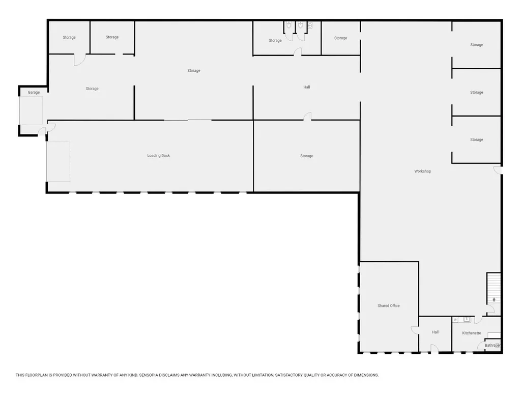
Discover a rare industrial investment opportunity at 13 Elm Street, offering over 12,500 square feet of flexible warehouse and production space set on a 1.7-acre lot with an adjacent buildable parcel for future expansion. Built in 1890 and thoughtfully maintained , this property combines classic New England construction with modern functionality, providing 480 amps of power, 13-foot interior ceiling height, and 9-foot bay clearance. A detached 4-car garage, ample off-street parking, and a dedicated loading dock support a wide range of industrial, manufacturing, vacant land for development opportunity or storage uses. The business and real estate are both long-standing fiberglass operation, the facility can be delivered fully equipped or cleared for new use - offering versatility for both owner -occupiers and investors seeking value-add potential. The location provides prime access to I-495 and I-95, within 30 minutes of the Massachusetts and New Hampshire coasts, ensuring convenient regional connectivity for distribution and client servicing. With expansion potential and strong local demand drivers, this property represents a compelling blend of stability, scalability, and accessibility. Group Showings Friday - Sunday - send your request today! Buyer/buyer's agent to do own due diligence.

Listing Tools (detailViewNewGen)

Property Details of 13 Elm Street

Property Details

Exterior Features

Community

Other Details

Map Location

Broker Reciprocity 

Copyright 2025 PrimeMLS, Inc. All rights reserved. This information is deemed reliable, but not guaranteed. The data relating to real estate displayed on this display comes in part from the IDX Program of PrimeMLS. The information being provided is for consumers’ personal, non-commercial use and may not be used for any purpose other than to identify prospective properties consumers may be interested in purchasing. Data last updated December 11, 2025 7:24 PM EST

 

Hi there! How can we help you?

Contact us using the form below or give us a call.

Send Us A Message:

I agree to receive marketing and customer service calls and text messages from Ruffner Real Estate. To opt out, you can reply 'stop' at any time or click the unsubscribe link in the emails. Consent is not a condition of purchase. Msg/data rates may apply. Msg frequency varies. Privacy Policy.

Do not fill in this field:

This site is protected by reCAPTCHA and the Google Privacy Policy and Terms of Service apply.

Hi there! How can we help you?

Contact us using the form below or give us a call.

Send Us A Message:

Do not fill in this field:

This site is protected by reCAPTCHA and the Google Privacy Policy and Terms of Service apply.

Hi there! How can we help you?

Contact us using the form below or give us a call.

Send Us A Message:

Do not fill in this field:

This site is protected by reCAPTCHA and the Google Privacy Policy and Terms of Service apply.

Do not fill in this field:

This site is protected by reCAPTCHA and the Google Privacy Policy and Terms of Service apply.

Do not fill in this field:

This site is protected by reCAPTCHA and the Google Privacy Policy and Terms of Service apply.

Do not fill in this field:

This site is protected by reCAPTCHA and the Google Privacy Policy and Terms of Service apply.

$

Do not fill in this field:

This site is protected by reCAPTCHA and the Google Privacy Policy and Terms of Service apply.